.
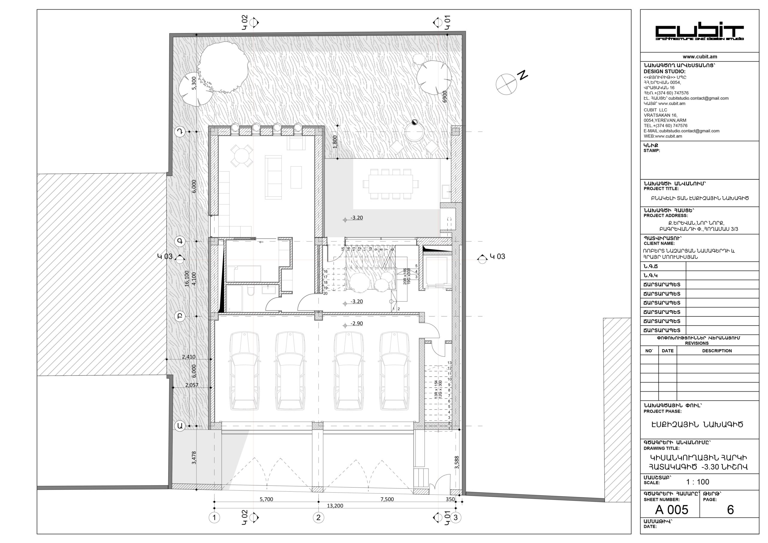
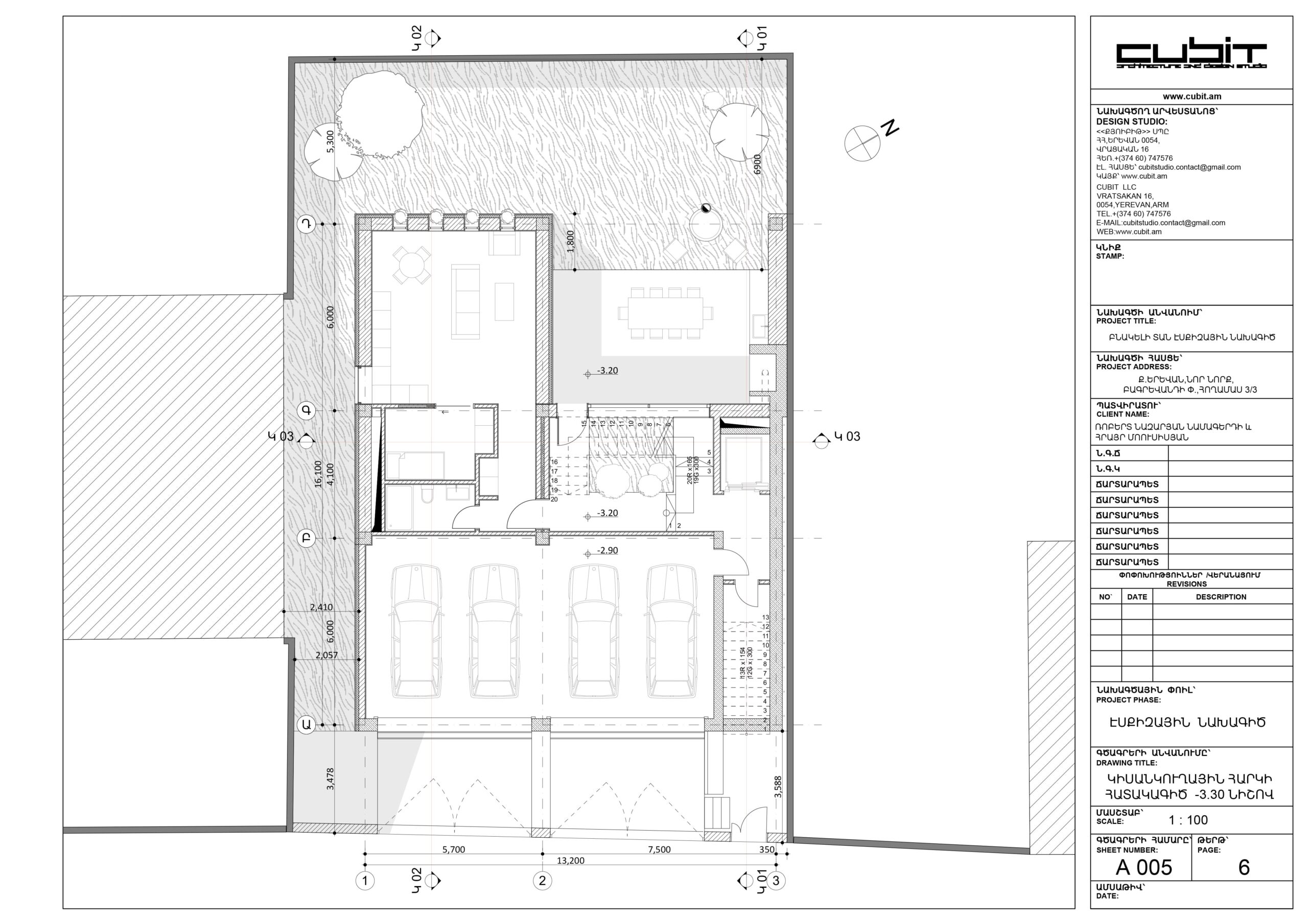
The Story: Situated in the Bagrevand district, this 900-square-meter
residence is designed for those who seek grandeur without sacrificing
privacy. From the street, the building creates a powerful impression with
its modern, geometric façade—a composition of smooth concrete and
dark textured walls punctuated by a unique grid of small windows that
shield the interior from public view. It stands as a sophisticated urban
fortress, secure and imposing.
However, the rear of the home tells a different story. Designed to
embrace the outdoors, the garden side opens up completely with walls
of glass and expansive balconies on every level. These outdoor “rooms”
provide perfect spots for morning coffee or evening relaxation,
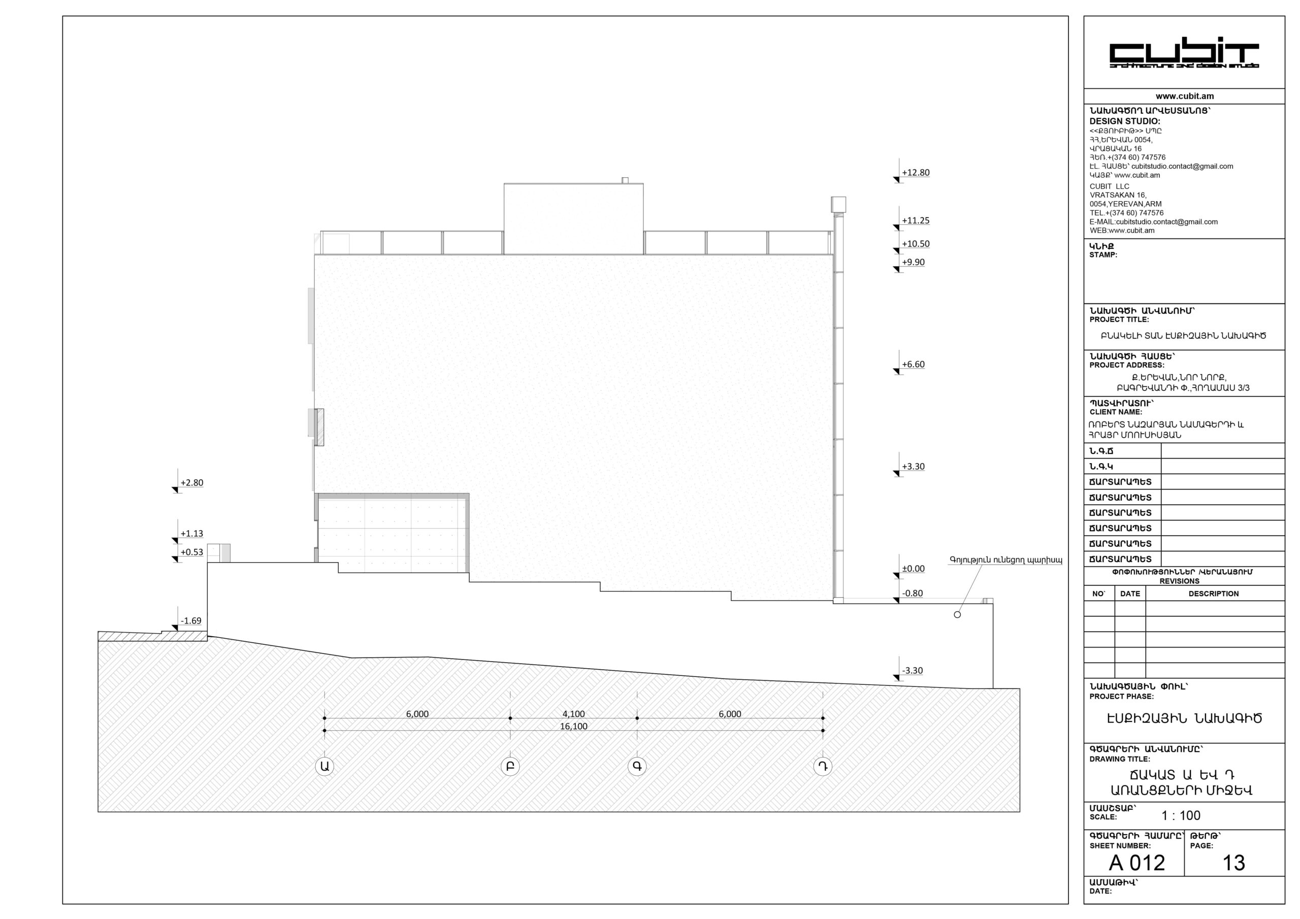
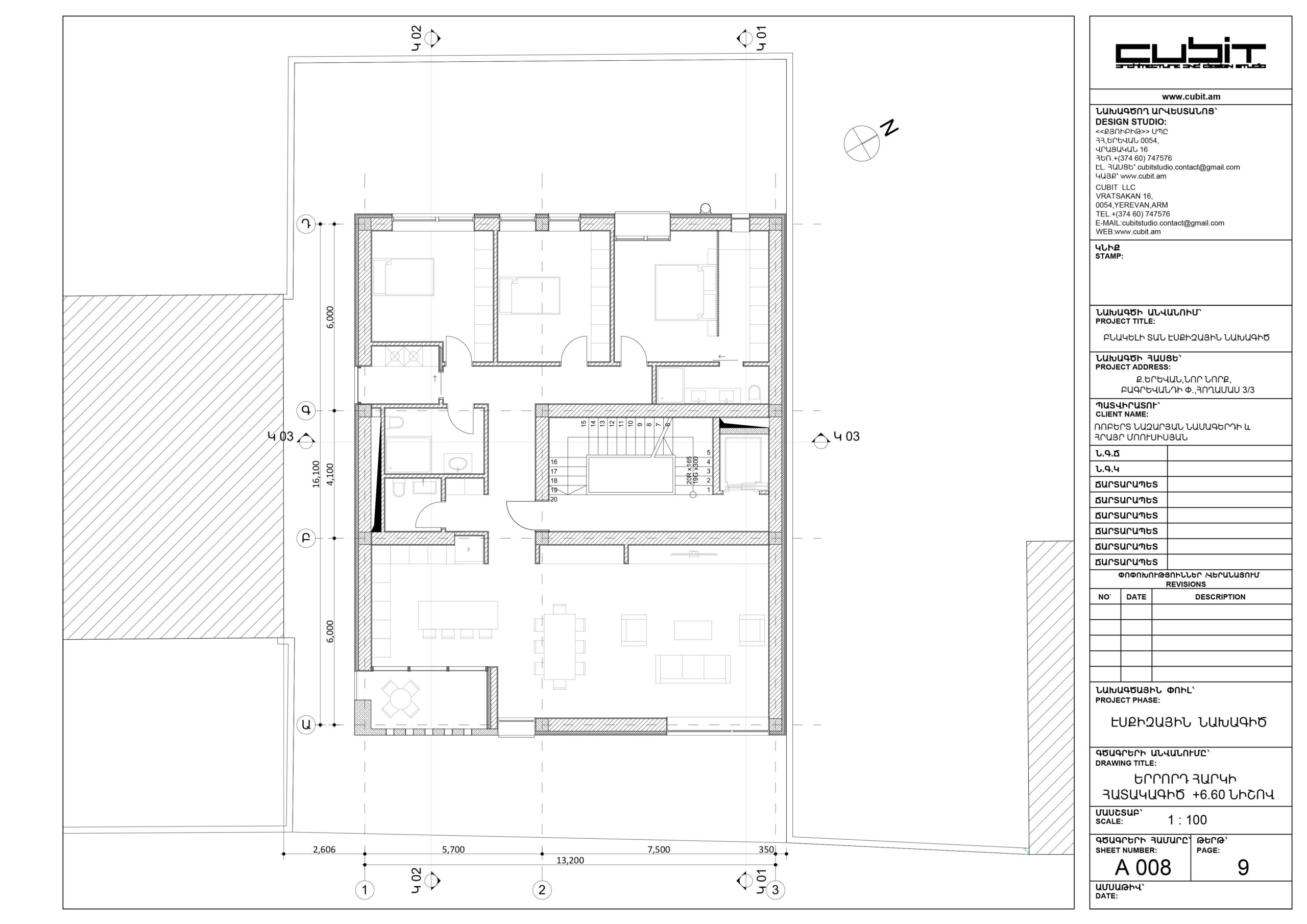
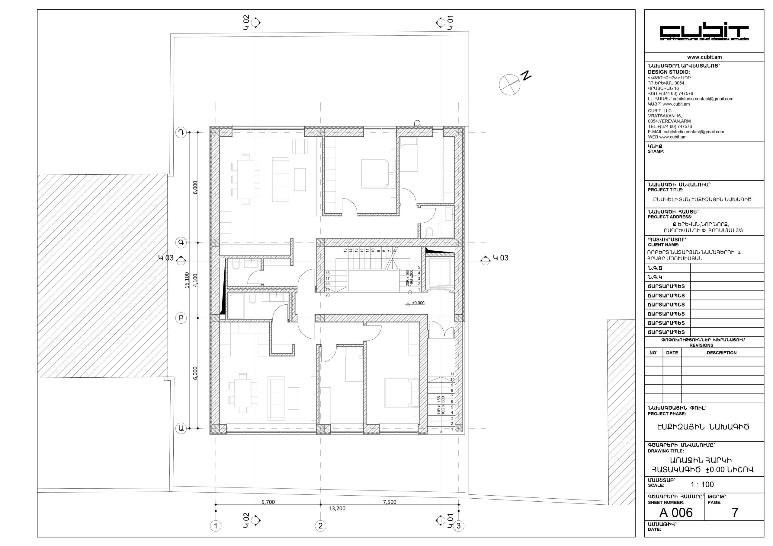
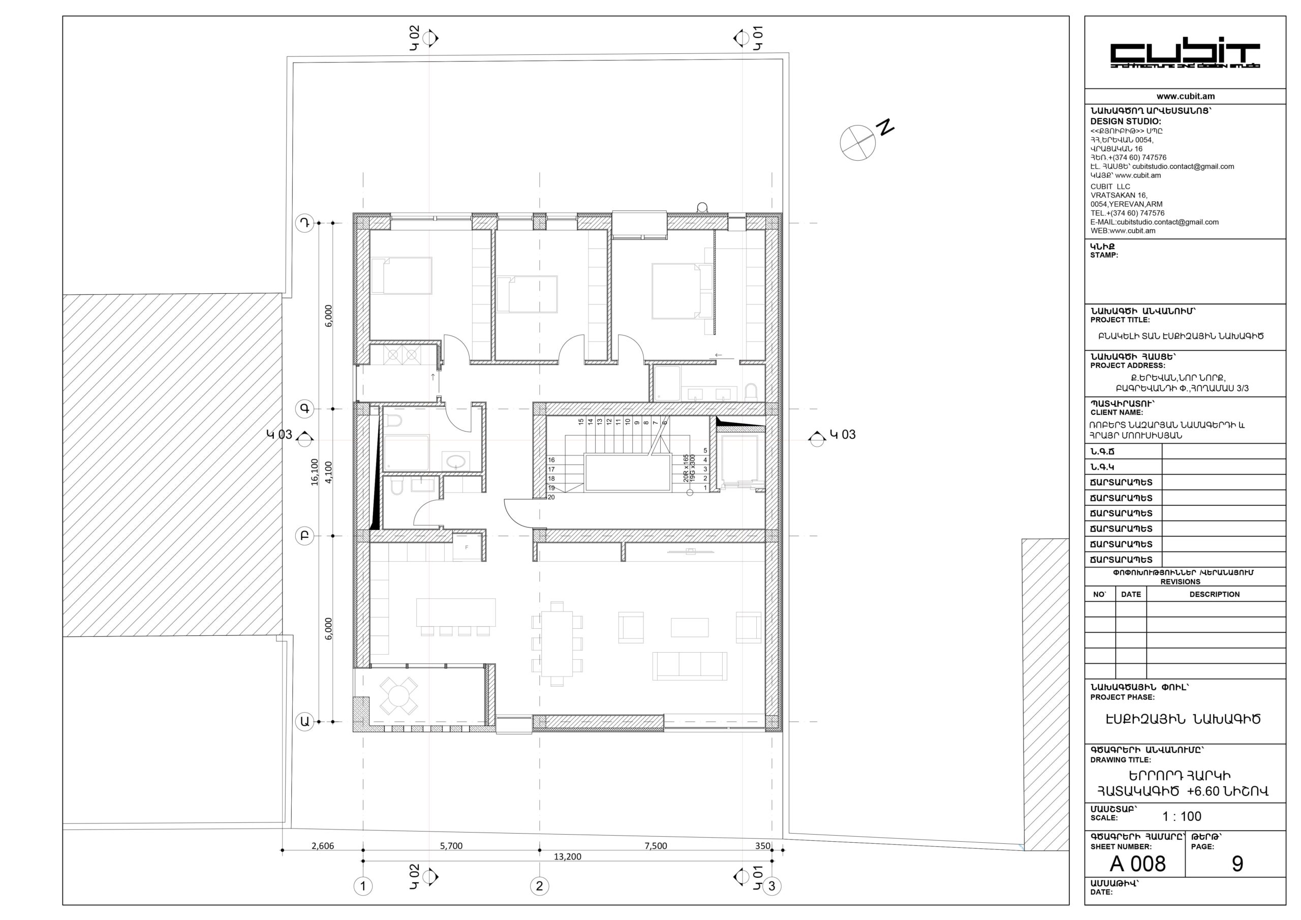
overlooking the private lawn. The home spans four levels, all connected
by a central elevator and staircase, ensuring that every corner of this
massive residence is easily accessible. Topped with a usable roof
terrace for panoramic views, the Bagrevand Residence combines the
scale of a boutique building with the intimacy of a family home.
Target Audience: Social media, index pages
Redefining suburban scale, the Bagrevand Residential Building is a 900
m2 vertical estate that functions less like a house and more like a private
boutique residence. The design juxtaposes a defensive, perforated
concrete street façade with a radically open garden elevation defined by
stacked panoramic balconies. Crowned by an expansive roof terrace and
anchored by a striking copper flue, this four-story monolith offers a
sophisticated, layered living experience rarely seen in the region.
CREDITS
& DATA